Mansion " Circular Arc "
1st


Before
2nd

   
prototype
3rd

During
Construction
4th

   
Scenery
Last

At
Completion


go back



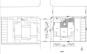
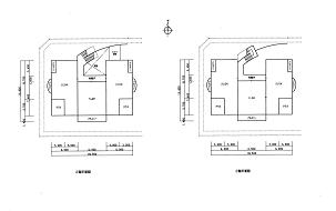
Prototype Plan




Bird's Eye View Animation Gif File



to Concept Photo

New Page





to [Rotate Animatiom Page]
New Page



to [Up & Down Animatiom Page]
New Page







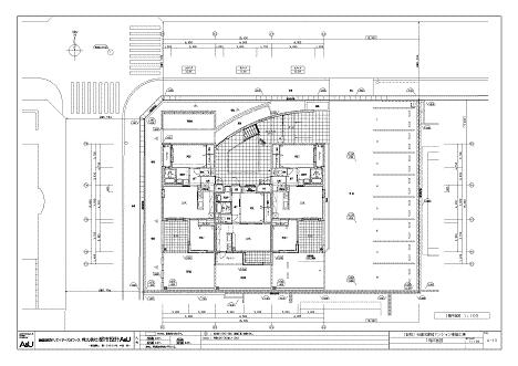
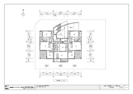
Finished drawing
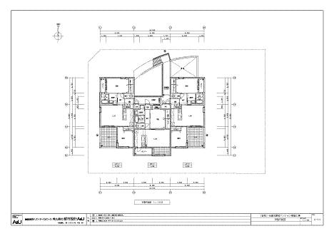
1-st Floor

PDF File
(new window)
2-nd Floor

PDF File
(new window)
3-rd Floor

PDF File
(new window)


Elevation Fig.

GIF File

by Owner

(new window)


Monochrome
(PDF)
Perth Fig.
Vol.1

GIF File

by Owner

(new window)


Monochrome
(PDF)
Perth Fig.
Vol.2

GIF File

by Owner

(new window)


Monochrome
(PDF)


Perth Fig.
Rough draft

by
Professional

JPG File
(new window)


Perth Fig.
on the way

by
Professional

JPG File
(new window)


Perth Fig.
Finished Perth

by
Professional

JPG File
(new window)




Composite
Picture

by Owner

JPG File
(new window)






Photo

2009/2/18



to TOP